
Balwin Properties recently announced plans for Munyaka, a new R9 billion development in Waterfall, Midrand in Johannesburg.
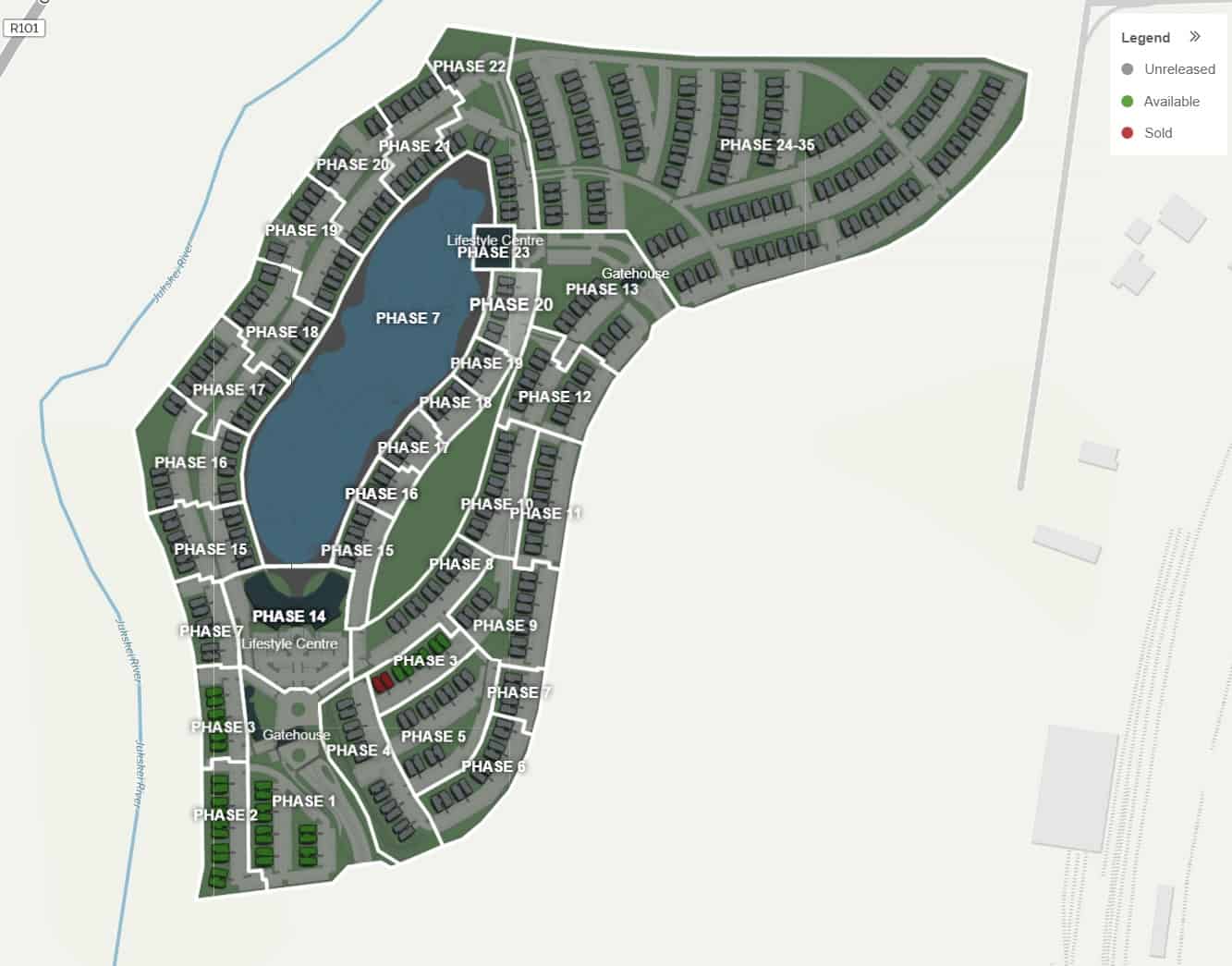
The Construction of the lagoon, boundary wall, gatehouse, lifestyle centre and show apartment block has already commenced with the balance of apartments being rolled out over the next eight years.
Balwin is further investing significantly in road infrastructure around Munyaka, having already completed Mia Drive at a cost in excess of R100m.
“Munyaka, which translates to ‘crystal’ in Venda, is set to be the crown jewel in our development portfolio. We have worked very closely with our architects to bring something exceptional to South African sectional title buyers and believe that it will not only set a new standard for lifestyle estate living in Waterfall, but indeed in the country,” commented Steve Brookes, founder, and CEO of Balwin Properties.
The residential development will have up to 5,020 units, ranging from one, two and three-bedroom apartments and will include appliances such as a fridge, stove, washing machine, tumble dryer and dishwasher in the sales price. One-bedroom apartments will start from R799,000. In addition, Balwin will develop two ultra-luxurious penthouses with a 180-degree view of the lagoon, expected to be marketed at R30m each, as well as four super luxurious lagoon-facing units, which are expected to sell for R10m each.

Balwin recently concluded an exclusivity agreement with Crystal Lagoons for South Africa, which will see the company develop freshwater lagoons in six strategic nodes in Johannesburg, Pretoria, the Dolphin Coast, the Western Cape and Mbombela.
The freshwater Crystal Lagoon at Munyaka will be the largest in the southern hemisphere, covering an area of approximately seven rugby fields. The lagoon will feature a landmark 50-meter high tower with amenities including a 50-seater restaurant and conference facility with a commanding view of the Johannesburg skyline as well as zip-lining from the tower into the lagoon and a heated pool, fed by the lagoon. A wide range of non-motorised watersport activities will be available through the lifestyle centre.
All residents at Munyaka will have access to the lagoon as well as a 6-star green rated VIP lifestyle centre with an on-site gym (free access), a spa, movie theatre, meeting rooms, restaurants, laundromats and concierge facilities. Access to these facilities will be biometrically controlled to add to the safety and security of residents.
Free wi-fi will be made available at the lifestyle centre as well as around the beachfront area, where pergolas will offer cellphone charging facilities.
Share your thoughts, Drop your comments below & Join the conversation, our Twitter or Facebook:





